Wall Panel Systems for Professional Builders

  • Home
  • Wall Panel Systems for Professional Builders

State-of-the-Art Structural Envelope Solutions

Built for precision, speed, and professional efficiency

At the core of every Green-R-Panel project is a high-performance wall system—precision-prefabricated panels that take your structural envelope from blueprint to framed shell faster, cleaner, and with unmatched accuracy. Designed for the needs of today’s custom home builders, our exterior and interior wall panels arrive engineered, labeled, pre-built, and jobsite-ready—eliminating on-site guesswork and keeping your crew focused on production.

Whether you’re building one home at a time or managing multiple projects, our wall panel systems reduce framing bottlenecks, compress timelines, and help you keep every build on schedule and on budget.

✔ Built to your exact specifications
✔ Delivered jobsite-ready for immediate installation
✔ Engineered for accuracy and long-term performance

Get a free custom quote 
Prefer to speak with a specialist? Call now → 1-800-871-7089

Wisconsin Prefab Farming systems

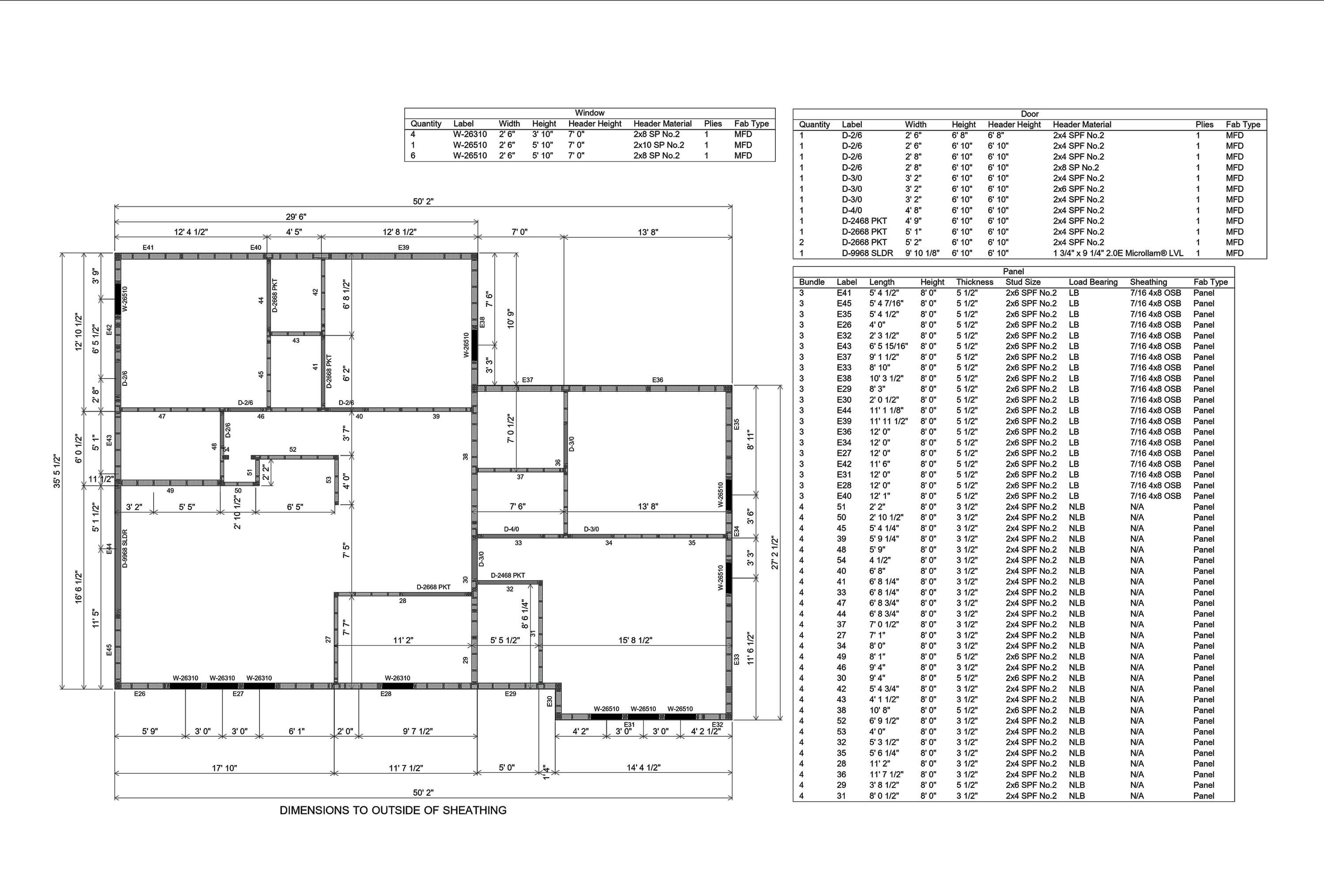
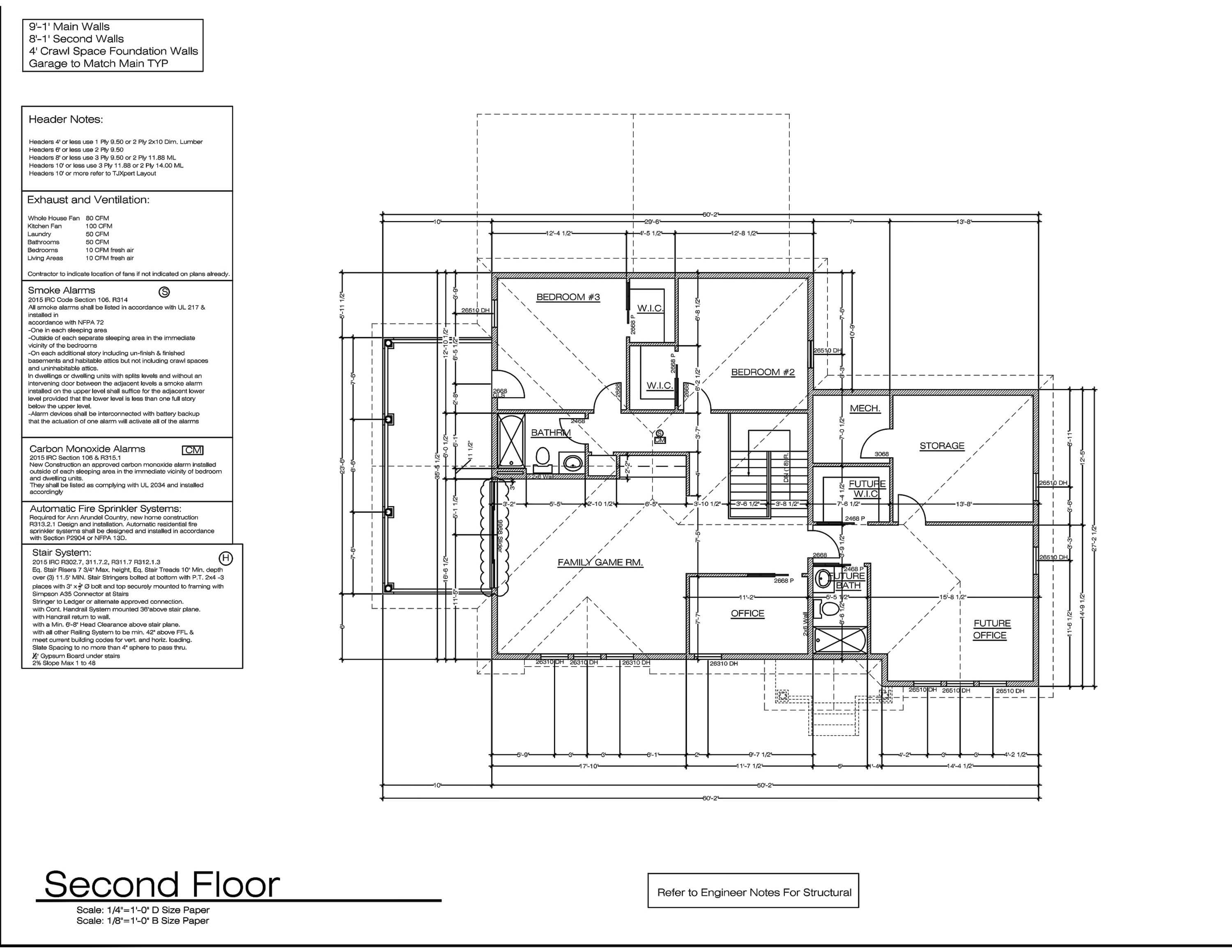
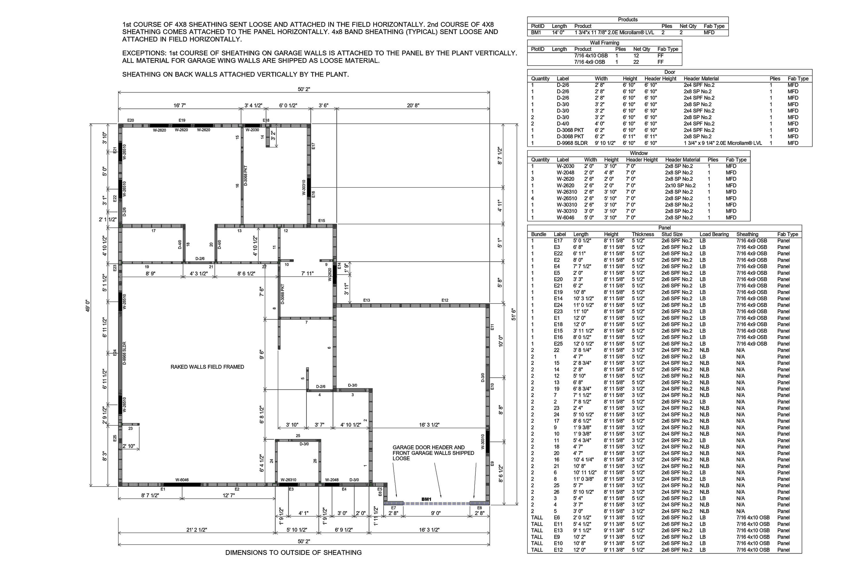
Sample Project Architectural Drawings

Sample Project Main Level Panel Elevations

Sample Project Upper Level Panel Elevations

Built for Performance, Designed for Professional Demands

Custom-Built to Your Plans

  • Each wall panel package is manufactured directly from your architectural drawings for an exact fit.
  • Working without finalized plans? We can adapt one of our standard models or start from your concept drawings.
  • All projects include detailed AutoCAD layouts and elevations for your review and approval before production begins.

Need a fast, accurate bid? Submit your plans here →

Premium Materials & Code-Compliant Construction

  • Framing: Kiln-dried 2×4 or 2×6 lumber at 16″ on center, delivering strength and stability.
  • Exterior Sheathing: 7/16″ OSB standard; plywood or ZIP System® available on request.
  • Pre-Framed Openings: All window and door openings framed with structural headers, engineered to meet local building codes.
  • Panels arrive prefabricated, reducing on-site fabrication, labor hours, and potential errors.

See Wall Panel Manufacturing Details

Prefab Framing

Sized for Jobsite Efficiency

  • Wall Heights: Standard 8′, 9′, 10′, 12’, 14’, or custom as specified in plans.
  • Panel Lengths: 8’–20′, optimized for your site conditions and material handling capabilities (manual handling, boom lift, or crane).
  • Labeled & Sequenced: Each panel is numbered for logical placement, ensuring smooth staging and installation flow.
Prefabricated Wall Panels Designed for Speed, Accuracy & Structural Performance

Cleaner installs, straighter walls, and tighter envelopes—precision-built wall panels that reduce labor and remove framing variability. Consistent. Delivered ready to assemble. Built to keep your schedule on track.

Request your project consultation today

Why Custom Home Builders Trust Green-R-Panel for Prefab Framing Solutions

  • Maintain full design flexibility without sacrificing build speed.
  • Keep crews working productively by virtually removing layout, measuring, and cutting from the jobsite workflow.
  • Shorten the time to dry-in, reducing exposure to weather-related delays.
  • Increase jobsite safety with lighter, easier-to-handle components.

Start Your Next Build With a Proven Advantage

Download The Professional Builder’s Guide to Panelized Shell Framing – Seamless Integration and discover how leading builders are cutting weeks off their schedules while improving precision and predictability on every project.

Enter your email to access the guide and receive clear, step-by-step guidance on integrating panelized shell framing into your upcoming projects.

×

The Power of Automated Manufacturing

Green-R-Panel wall panels are CAD-designed and manufactured using precision-driven automated assembly lines. This results in consistent, dimensionally accurate wall sections that install seamlessly—no site corrections, no wasted motion.

Benefits of factory-built wall systems for builders

  • Reduced labor requirements—crew focuses on assembly, not cutting.
  • Faster dry-in to protect interiors from the elements.
  • Cleaner, more organized jobsites with minimal scrap.
  • Staged deliveries for just-in-time installation and better site logistics.
Walls 3D Final Galesville

Simple 5-step process

1. Initial Consultation

Call, email, or submit a form to discuss your timelines, specifications, and build requirements. Learn how our panelized systems streamline your framing process from day one.

2. Submit Drawings

Send us your construction drawings for a detailed prefab framing estimate. Our factory estimators will prepare a clear, accurate scope for your project.

3. Receive Estimate

Review our detailed proposal for your panelized building system. Ask questions, make changes, and place a 10% deposit to start your order.

4. Design & Manufacture

We create AutoCAD-drafted component drawings for your review and approval before production. Your floor, wall, and roof systems are precision-manufactured to spec. 

5. Job Site Delivery

Your flat-packed, labeled, and build-order-arranged kit ships directly from our nationwide factory network. We coordinate trucking and provide ongoing builder support.

Green-R-Panel – Your Structural Envelope Partner

We provide more than wall panels—your residential framing system includes:

Looking for a turnkey prefabricated shell package? Our experts can coordinate every element for a streamlined build.

Wall Panel Manufacturing Details

Green-R-Panel’s prefabricated wall panels are designed to meet the demands of high-end residential construction while keeping your projects efficient and cost-effective.

Built for speed, strength & precision:

  • Engineered from your approved plans for a perfect fit.
  • Factory-framed with kiln-dried lumber for long-term performance.
  • Exterior sheathing included with upgrade options available.
  • Pre-framed openings for windows and doors with engineered headers.
  • Panels sized for crew-friendly handling, eliminating the need for heavy lifting equipment on most sites.
  • CAD-based layouts provided for clear installation sequencing.
  • Automated production for consistency and accuracy.
  • Optional EPS insulation for enhanced thermal performance.
Green-R-Panel is America’s #1 and most trusted source for precision-manufactured prefab framing systems in residential construction. Our AutoCAD-designed wall panel systems, engineered I-joist and open-web floor systems, and roof truss systems deliver the speed, quality, and cost control today’s builders expect.