Roof Truss Systems for Professional Builders

  • Home
  • Roof Truss Systems for Professional Builders

Build Better Roof Structures with Engineered Truss Systems

As a custom home builder, you know that framing quality sets the tone for everything that follows. Every project is a direct extension of your reputation — and you need structural systems that help you deliver speed, precision, and consistency on every job.

Green-R-Panel’s pre-engineered roof truss systems are the structural backbone that bring your builds to “under roof” status with unmatched efficiency. Engineered for exact fit and designed to integrate seamlessly with our prefabricated wall panels and engineered floor systems, these trusses eliminate coordination gaps, reduce labor hours, and keep your schedule moving.

Every truss package is site-specific and sealed by an engineer licensed in your project’s state, ensuring full municipal compliance and verified load capacity—produced with precision in controlled manufacturing environments. The result: faster dry-ins, fewer weather exposures, and a reliable structural system you can stand behind — structurally, professionally, and with complete confidence in the final product your clients expect.

roof truss

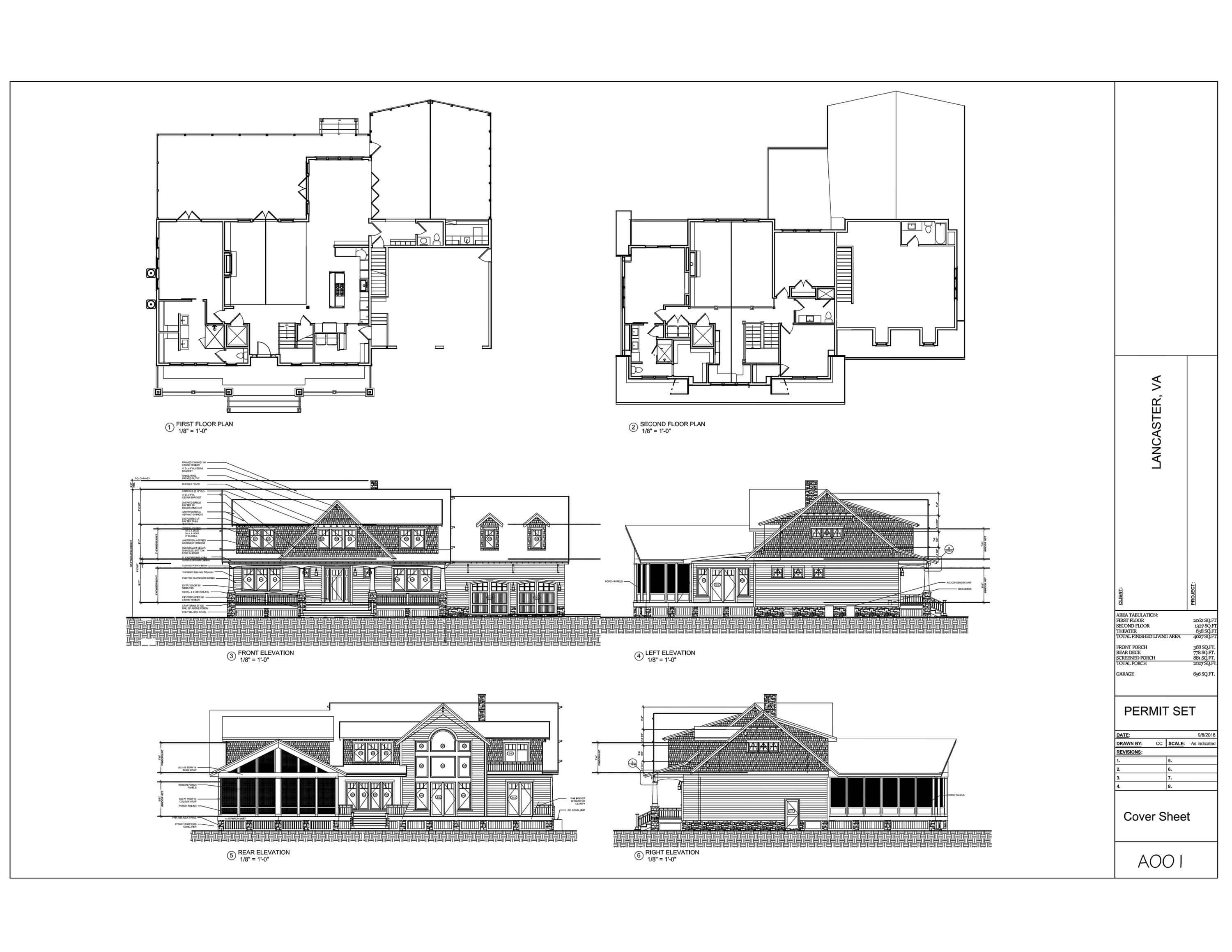
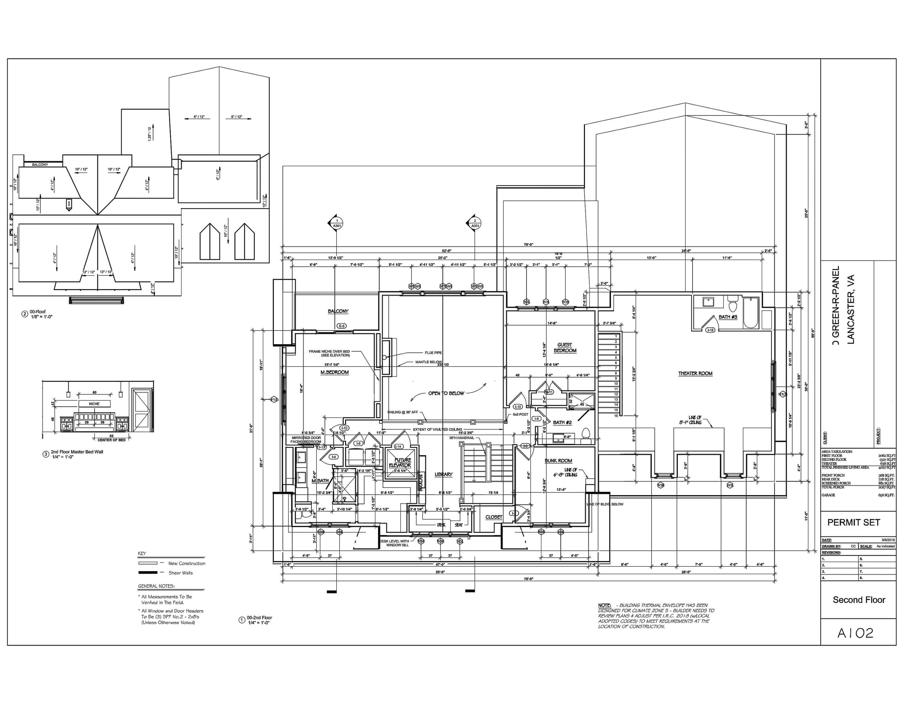
Sample Project Architectural Plans

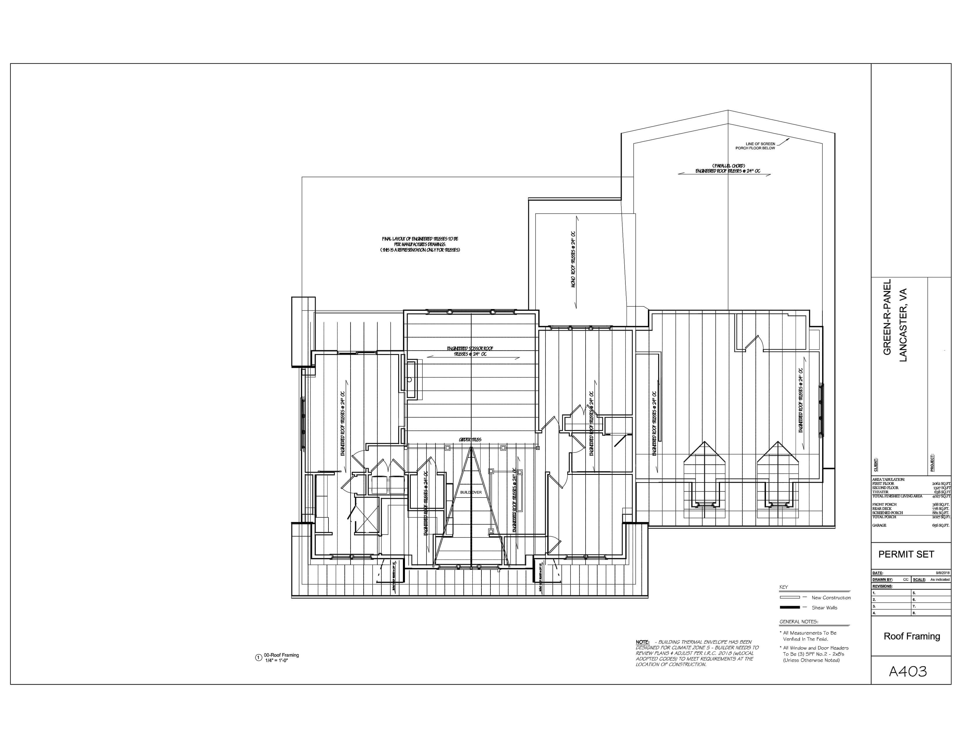
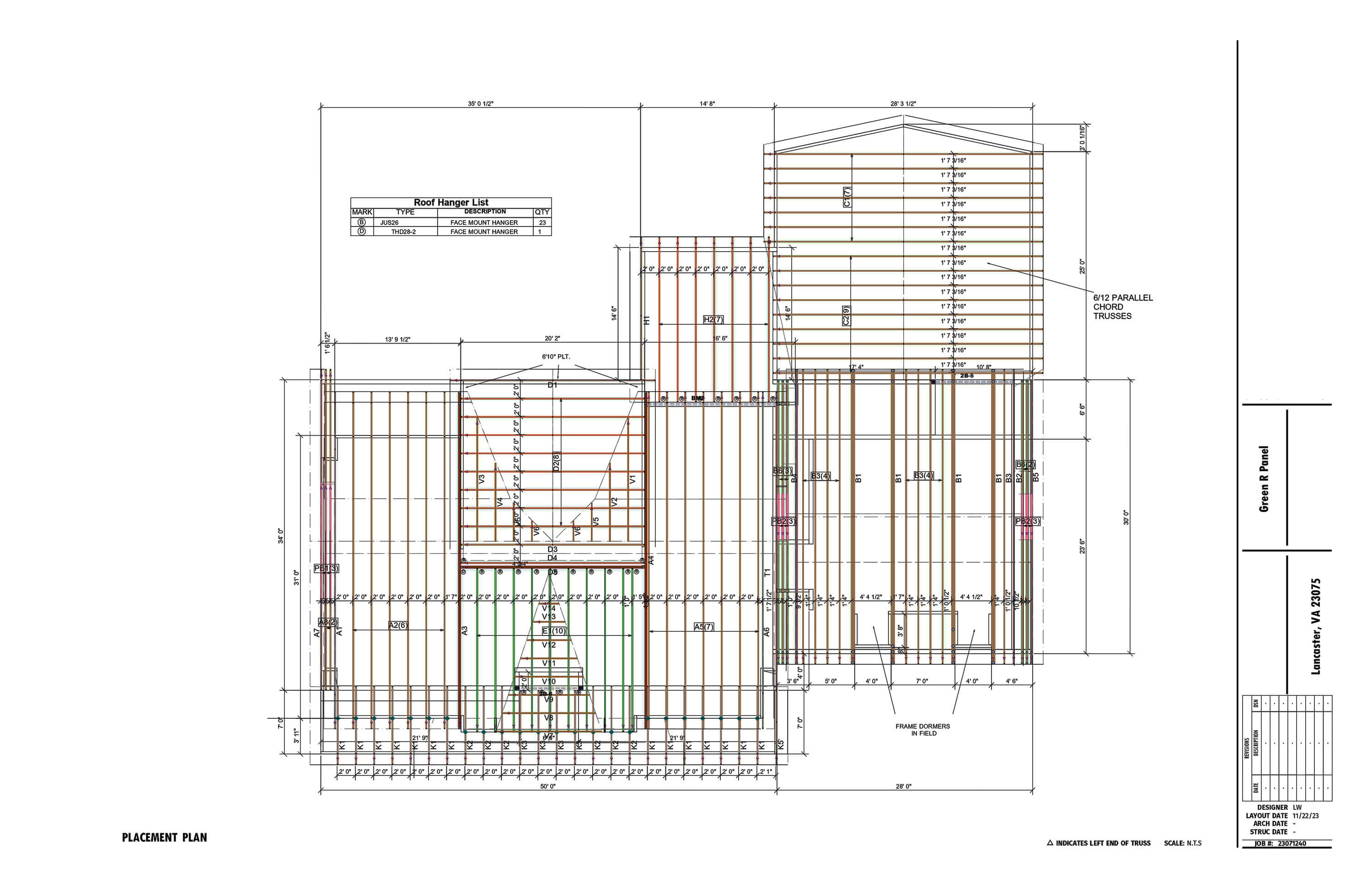
Sample Project Roof Truss Layout & Drawings

Why Custom Home Builders Choose Green-R-Panel’s Pre-Engineered Roof Trusses

Faster Installation = More Projects Completed On Time
  • Trusses arrive precision-cut, labeled, and ready to install
  • Minimal on-site measuring or adjustments — just lift into place and secure
  • Reduced reliance on specialized crews means you can meet schedules even in a tight labor market
  • Shortens the critical path to dry-in, allowing you to move on to interior trades sooner
Stronger, Safer, and Built for Long-Term Performance
  • Professionally engineered to your exact load-bearing requirements
  • Manufactured with laser-guided equipment for pinpoint accuracy
  • Steel plate connectors and factory-controlled assembly provide unbeatable strength
  • Designed to withstand your region’s wind, snow, and seismic loads without over-engineering or waste
Permit-Ready Engineering That Speeds Approvals
  • Every truss package includes sealed structural drawings
  • Stamped layouts and elevations meet or exceed local and national building codes
  • Speeds up permitting so you can break ground — and get paid — faster
Design Flexibility for Any Client Vision

Your clients expect unique designs — we make sure your trusses can deliver them.

  • Clear spans allow for open-concept interiors without intrusive load-bearing walls
  • Supports vaulted ceilings, lofts, bonus rooms, and attic spaces
  • Compatible with our wall panel and floor systems for a fully integrated build
  • Overhangs built to plan
  • Raised energy heels for improved insulation performance
EZ SIP HOME
Engineered Roof Truss Systems Designed for Strength, Accuracy & Speed

Deliver stronger spans, cleaner installs, and reliable roof performance with precision-engineered trusses that reduce labor and eliminate onsite guesswork. Consistent. Ready to set. Built to keep your schedule on track.

Request your project consultation today

Available Truss Styles Include:

  • Common / Standard
  • Gable
  • Hip
  • Attic
  • King Post
  • Queen Post
  • Fink
  • Howe
  • Pratt
  • Scissor
  • Raised Tie
  • Fan
  • Gambrel
  • Mono
  • Flat
  • Cathedral
  • Parallel Chord
  • And more

Start Your Next Build With a Proven Advantage

Download The Professional Builder’s Guide to Panelized Shell Framing – Seamless Integration and discover how leading builders are cutting weeks off their schedules while improving precision and predictability on every project.

Enter your email to access the guide and receive clear, step-by-step guidance on integrating panelized shell framing into your upcoming projects.

×

Nationwide Delivery – Direct to Your Jobsite

Our coast to coast factory network ensures your trusses area built to local specifications and delivered directly to your site, reducing freight costs and lead times.

Simple 5-step process

1. Initial Consultation

Call, email, or submit a form to discuss your timelines, specifications, and build requirements. Learn how our panelized systems streamline your framing process from day one.

2. Submit Drawings

Send us your construction drawings for a detailed prefab framing estimate. Our factory estimators will prepare a clear, accurate scope for your project.

3. Receive Estimate

Review our detailed proposal for your panelized building system. Ask questions, make changes, and place a 10% deposit to start your order.

4. Design & Manufacture

We create AutoCAD-drafted component drawings for your review and approval before production. Your floor, wall, and roof systems are precision-manufactured to spec. 

5. Job Site Delivery

Your flat-packed, labeled, and build-order-arranged kit ships directly from our nationwide factory network. We coordinate trucking and provide ongoing builder support.

Your Structural Envelope Framing Solution

Green-R-Panel provides a ready-to-assemble framing system for custom homes, including:

Interested in a full panelized shell package? We’ll align with your workflow to deliver a system tailored to your construction team.

Get a Free Quote Today!

Green-R-Panel is America’s #1 and most trusted source for precision-manufactured prefab framing systems in residential construction. Our AutoCAD-designed wall panel systems, engineered I-joist and open-web floor systems, and roof truss systems deliver the speed, quality, and cost control today’s builders expect.