Custom Panelized House Kit in Milford, OH

Milford-6

Custom Panelized House Kit in Milford, OH

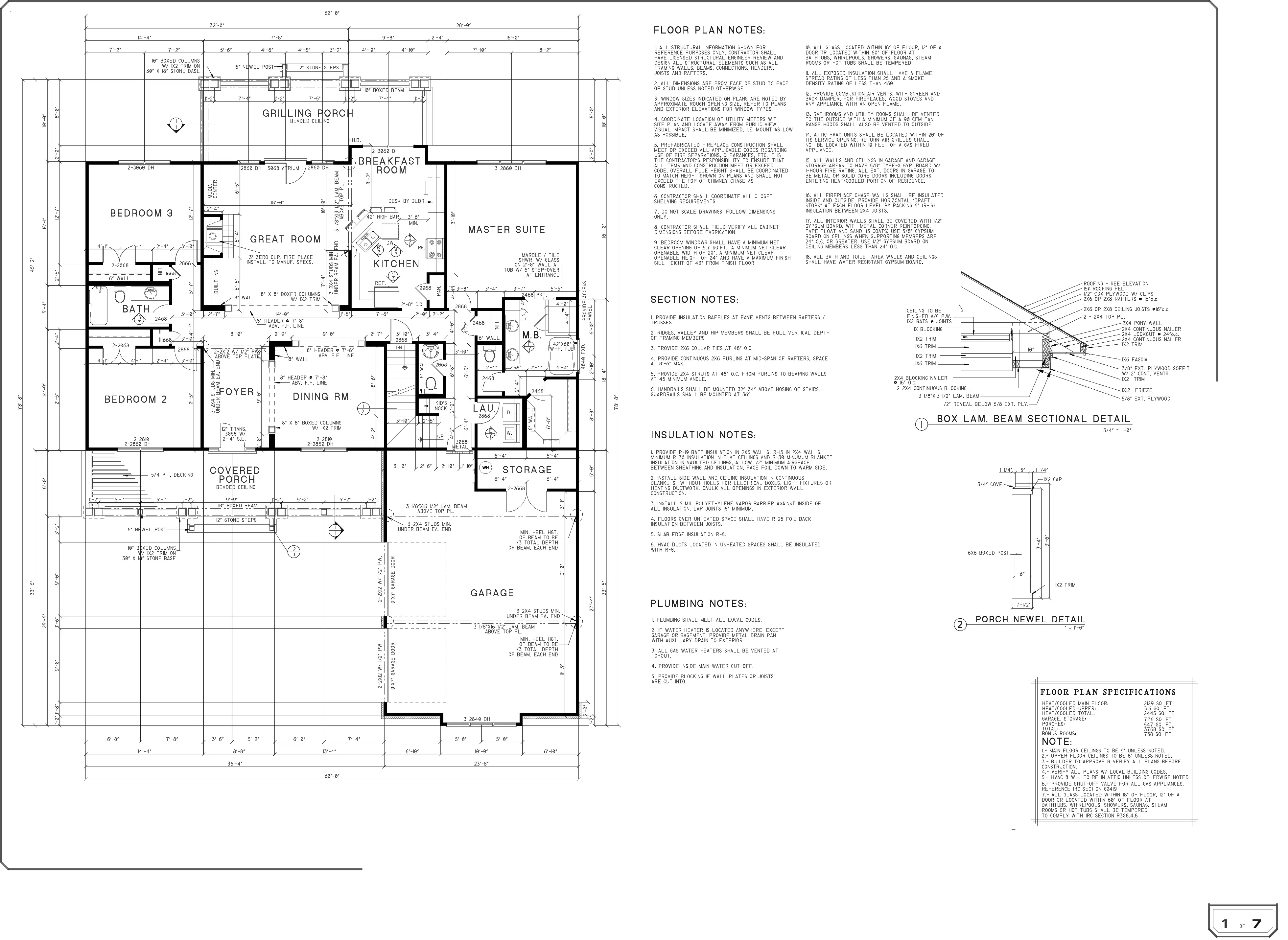
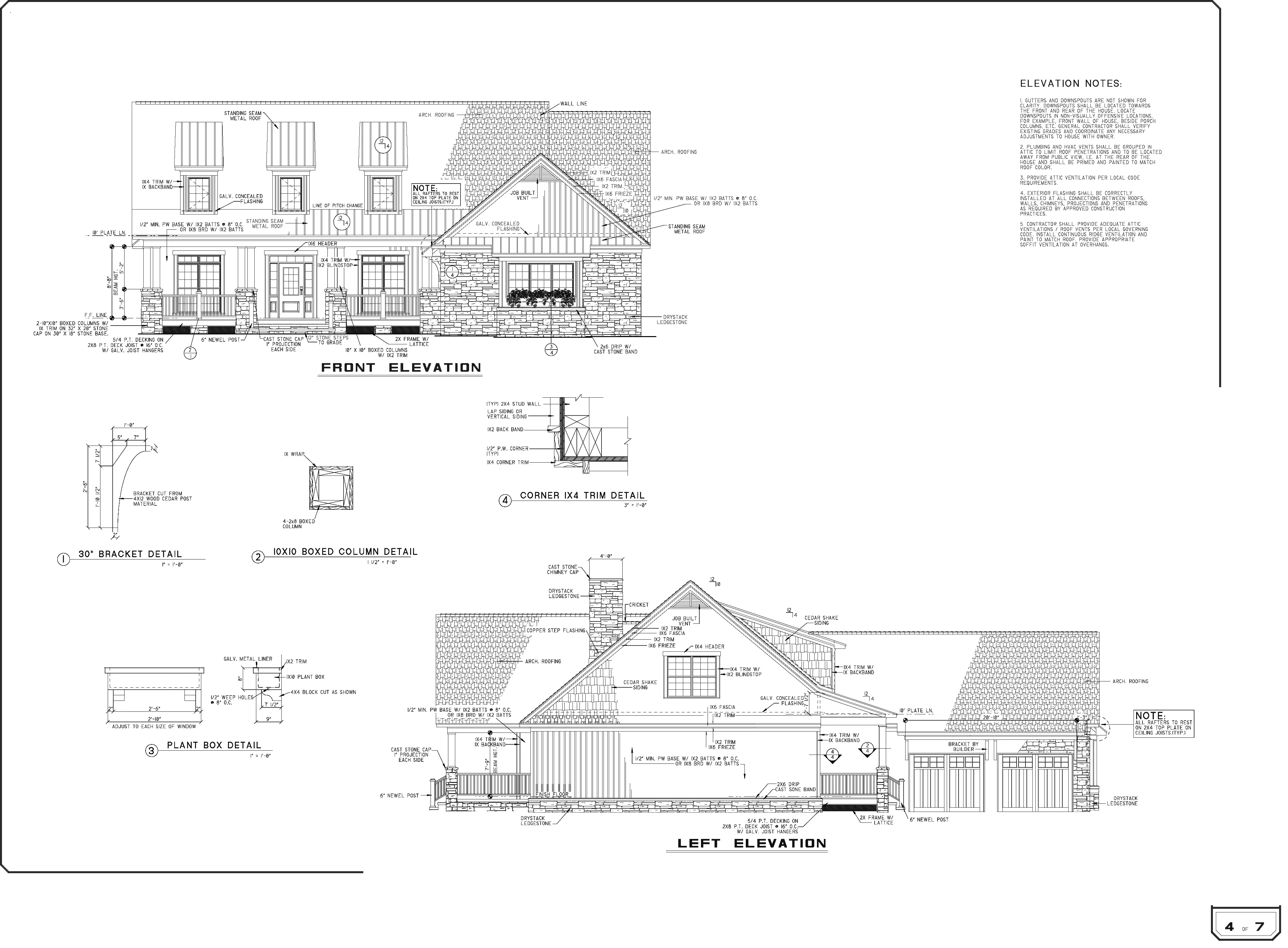
Efficient Family Living in Milford, OH: 2,445 sq. ft. Custom Two-Story Panelized Home with Garage and Porches

This 2,445 sq. ft. custom two-story panelized home in Milford, Ohio, blends traditional curb appeal with modern construction efficiency. Designed with a spacious 2-car garage and two covered porches, the layout offers comfort, convenience, and enhanced outdoor living—perfect for families in suburban or rural areas of southwest Ohio.

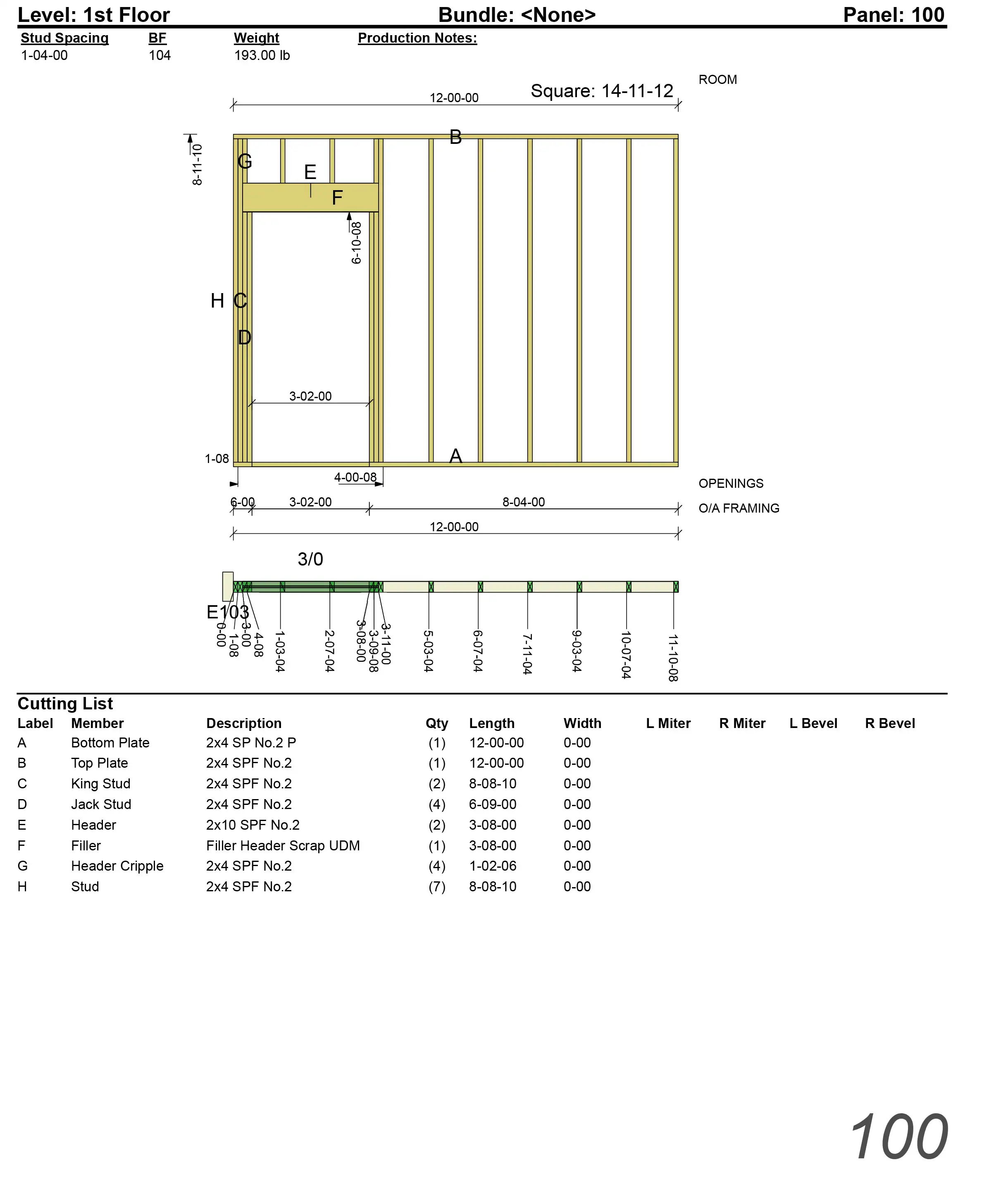
The Green-R-Panel kit included an I-Joist floor system, custom-manufactured wall panels, and engineered roof trusses, all factory-built and delivered ready for fast, accurate assembly. With Ohio’s changing weather patterns and labor demands, this panelized system helped streamline framing, minimize delays, and ensure energy code compliance from the ground up.

Whether you’re building a full-time residence or investment property, Green-R-Panel provides the structure, speed, and support needed to bring your custom home vision to life—efficiently and affordably.

Location:
Milford, OH, US 45150
Model: Custom 2 Story
SQF: 2445
PDF  
Custom Panel Home Kit with 2-car garage and 2 porches (Green-R-Panel)  
l

Send message to Green-R-PanelIDL

Send message to moderator