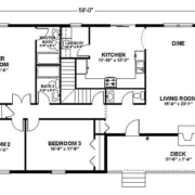
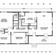
R1P – 32×57 – 1824 sf

 

Explore the R1P – 32′ × 57′ Prefab Model

Spacious Ranch Design with Front Porch Appeal

The R1P Ranch with Porch offers 1,824 sq. ft. of efficient one-level living with a bright, open layout ideal for families or downsizers seeking comfort and accessibility. This plan features three bedrooms and two full baths, including a large master suite with private bath and walk-in closet. The open kitchen, dining, and living area create a seamless central gathering space, while the covered front porch extends the home’s livable area outdoors for year-round enjoyment.

The model’s streamlined shape and balanced proportions make it easy to assemble using Green-R-Panel’s prefabricated wall panels, engineered roof trusses, and optional floor systems. Every component is manufactured for precision and quality, reducing labor hours, jobsite waste, and build time while maintaining superior structural performance.

MODEL INFORMATION

MODEL: R1P – 32×57 – 1824 sf

TYPE: R1P – 32×57

SQUARE FOOTAGE: 1824 sf

PHOTOS

Flexible Foundation and System Options

Many homeowners use the R1P as a flexible starting point—customizing interior dimensions, enlarging rooms, or adding options like an attached garage, rear deck, or basement stair access to suit their site and lifestyle. The R1P can be built on slab-on-grade, crawl space, or full basement foundations, adapting easily to regional building requirements and varying lot conditions.

Builders can choose between I-Joist or open-web floor truss systems, both engineered for load-bearing strength and efficient utility routing. Every Green-R-Panel kit includes prefabricated wall panels, engineered roof trusses, and optional floor systems, all produced in advanced facilities to ensure accuracy, durability, and rapid assembly. The result is a reliable, energy-efficient framing system that accelerates your construction schedule and delivers long-lasting performance.