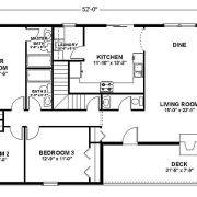
The R1P Ranch with Porch delivers 1,696 sq. ft. of thoughtfully designed single-level living, blending comfort, efficiency, and classic curb appeal. This spacious model features three bedrooms and two full baths, centered around an open-concept kitchen, dining, and living area that creates a seamless flow for daily living and entertaining. The covered front porch extends the living space outdoors, while large windows throughout the main living areas bring in abundant natural light.
With its rectangular footprint and simplified roofline, the R1P is ideal for fast, precise assembly using prefabricated wall panels, engineered roof trusses, and optional floor systems. Each component is precision-manufactured to ensure strength, accuracy, and reduced on-site waste—helping builders and homeowners alike complete projects efficiently and on schedule.
MODEL: R1P – 32×53 – 1696 sf
TYPE: R1P – 32×53
SQUARE FOOTAGE: 1696 sf
Many homeowners use the R1P as a flexible starting point—expanding interior rooms, modifying layouts, or adding features such as an attached garage, rear deck, or stair access to a full basement for additional living or storage space. The design accommodates slab, crawl space, or basement foundations, adapting easily to various site conditions and regional requirements.
Builders can choose between I-Joist or open-web floor truss systems, both engineered for durability and simplified mechanical installation. Every Green-R-Panel package includes prefabricated wall panels, engineered roof trusses, and optional floor systems, all manufactured in controlled environments for superior precision and reliability. The result is a high-quality, energy-efficient framing system that speeds up construction, minimizes waste, and delivers long-term performance.