R1P – 28×49 – 1372 sf

 

Explore the R1P – 28′ × 49′ Prefab Model

Inviting One-Level Living with Classic Front Porch Appeal

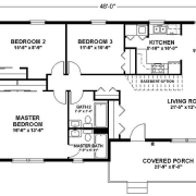
The R1P Ranch with Porch offers 1,372 sq. ft. of functional, single-story living designed for comfort and everyday efficiency. This well-balanced layout includes three bedrooms and two full baths centered around an open-concept kitchen, dining, and living area that encourages family connection and natural light. The welcoming front porch enhances both curb appeal and livability, extending the home’s usable space for relaxation and outdoor enjoyment.

With its streamlined rectangular footprint and gable roofline, the R1P assembles quickly using Green-R-Panel’s prefabricated wall panels, engineered roof trusses, and optional floor system. Precision manufacturing ensures consistent quality, faster build times, and less jobsite waste—helping builders and homeowners complete projects on schedule and within budget.

MODEL INFORMATION

MODEL: R1P – 28×49 – 1372 sf

TYPE: R1P – 28×49

SQUARE FOOTAGE: 1372 sf

PHOTOS

Flexible Foundation and System Options

Many homeowners use the R1P as a flexible starting point—expanding bedrooms, reconfiguring the kitchen, or enlarging living spaces to suit their lifestyle. The model easily adapts to slab, crawl space, or full basement foundations, making it suitable for a wide range of site conditions.

Builders can select from I-Joist or open-web floor truss systems, both engineered for structural reliability and simplified mechanical installation. Every Green-R-Panel package includes prefabricated wall panels, engineered roof trusses, and optional floor systems—all produced in advanced, climate-controlled facilities for accuracy and long-term performance. The result is a high-quality, energy-efficient framing solution that brings your project from foundation to dry-in faster while reducing overall labor and cost.