C2S – 28×53 – 2968 sf

 

Experience the C2S – 28′ × 53′ Two-Story Layout

Generous Proportions for Everyday Comfort and Occasional Hosting

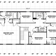
This 2,968 sq. ft. model delivers expansive, well-organized living space across two levels — ideal for households that value both connection and privacy. The main floor centers around an open kitchen flowing into a large family room and dining area, creating a natural hub for daily life. A dedicated den or guest suite (23’6” x 12’3”) near the entry offers flexible use — perfect as a home office, playroom, or private retreat.

Upstairs, the owner’s suite is designed for relaxation: 19’0” x 20’7”, with dual sinks, soaking tub, separate shower, and oversized walk-in closet. Four additional bedrooms are thoughtfully arranged — including one with private bath (Bedroom 5) and two others sharing Bath 3. A full laundry room on the upper level adds convenience. An “open below” stairwell enhances vertical sightlines and brings in natural light from above.

Built using prefabricated wall panels, manufactured off-site for exact fit and consistency, this home pairs them with engineered roof trusses and engineered floor systems — ensuring structural performance, faster assembly, and superior energy efficiency from day one.

MODEL INFORMATION

MODEL: C2S – 28×53 – 2968 sf

TYPE: C2S – 28×53

SQUARE FOOTAGE: 2968 sf

PHOTOS

Engineered for Personalization — Shape It Around Your Life

This model’s generous proportions and flexible layout invite you to adapt every detail to your lifestyle — whether you’re optimizing for flow, light, or function. Many homeowners begin by transforming the 23’6” x 12’3” den or guest suite into a quiet home office with built-ins, a wellness studio with ambient lighting, or even a cozy reading nook with floor-to-ceiling windows. Others choose to remove the wall between the dining and living rooms to create one seamless great room — perfect for hosting holidays, movie nights, or letting kids play while you cook. Some elevate the master suite experience by enlarging windows for more natural light, adding a vaulted ceiling for drama, or expanding the bathroom into a spa-like oasis with heated floors and a freestanding tub.

These are just a few of the ways real owners have made this model uniquely theirs. With prefabricated wall panels, engineered roof trusses, and engineered floor systems, you can shift walls, adjust ceilings, add skylights, reconfigure baths, or even create a loft or balcony — all while maintaining structural integrity and build speed. This isn’t just a home you buy — it’s a foundation you design, tailored to how you live.