I-joist Floor Systems for Multi Family Commercial

  • Home
  • I-joist Floor Systems for Multi Family Commercial

Engineered Floor Systems for Multi-Family & Light Commercial Projects

For developers managing small-scale multi-family and light commercial builds, speed and precision are non-negotiable. Green-R-Panel engineered floor systems are part of a fully integrated framing package—designed to work seamlessly with our wall panels and roof systems—keeping projects on schedule and budgets predictable without compromising structural performance.

Our floor packages feature high-strength I-joists and open-web floor trusses, engineered to integrate cleanly into the complete framing workflow. Each system is manufactured to exact specifications, matched to slab, crawl space, or basement foundations, and delivered to the jobsite ready for immediate installation.

  • Engineered for predictable performance
  • Designed for efficient installation
  • Delivered with repeatable results

Managing multiple buildings or unit types? We coordinate floor layouts across your project to streamline framing, reduce jobsite friction, and accelerate delivery for multi-family and light commercial developments.

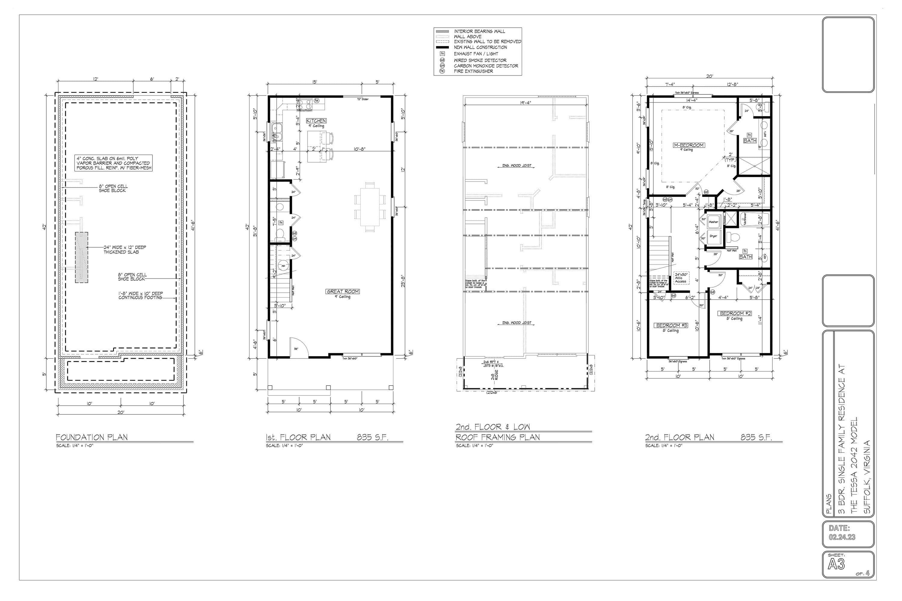
Sample Project Architectural Plans

Sample Project Floor I-Joist Layout

Why Floor Systems Matter for Multifamily Developers

In volume residential development, the floor system sets the pace for the rest of the build. From accurate wall alignment to efficient utility installation, every downstream trade benefits when your subfloor system is level, solid, and built right the first time.

A Green-R-Panel engineered floor system delivers:

  • A consistent framing baseline across lots or phases
  • Solid, creak-free floors that meet client expectations
  • Smooth integration of plumbing, electrical, and HVAC
  • Code-compliant structural performance
  • Fewer call-backs and post-framing fixes

By shifting floor framing offsite, you eliminate delays, reduce rework, and give your crews a head start on every job.

Choose the Right System for Your Development Plan

Engineered I-Joists

Built for Efficient Construction at Scale

Green-R-Panel’s engineered I-joist floor systems are designed for developers who need to balance structural performance, cost control, and installation speed across repeating building footprints. Lightweight, code-compliant, and precision-manufactured, these systems deliver consistent strength and fast installation—making them ideal for scalable residential and light commercial projects.

Engineered I-joists simplify layout coordination, accommodate standard MEP runs, and support predictable framing schedules across multi-unit developments.

Best suited for:

  • Single-family, duplex, and twin-home foundations

  • Crawlspace and basement construction

  • Projects with standard, repeatable MEP layouts

  • Developments requiring efficient floor framing with minimal waste and labor variability

Key Benefits:

  • Quick install with minimal site adaptation
  • Consistent performance across lots
  • Reduced waste and faster crew cycles
  • Strong, quiet floors that meet buyer expectations

What’s Included:

  • Premium brand I-joists (TJI, LP, BCI, etc.)
  • Rim boards to tie in perimeter walls
  • Hangers and support connectors as needed
  • Pre-cut openings for stairs, mechanicals, or chases

Open Web Floor Trusses

Versatility for mixed-use or mechanical-heavy designs

When your development includes larger homes, secondary suites, or tight utility zones, open-web trusses offer layout freedom and better trade coordination. With no need to notch or drill, MEP work goes in cleanly and quickly—saving hours per unit.

Ideal for:

  • Multi-unit townhomes or larger single-family models
  • Floor plans with centralized or multi-zone HVAC
  • Homes requiring flexible ducting or plumbing paths

Advantages:

  • Open-web design eliminates cutting for service runs
  • Engineered to your exact layout and spans
  • Fast, clean install for MEP trades
  • Long-term structural stability with fewer callbacks

Delivered With:

  • Trusses custom-sized for your unit plans
  • Full layout documentation and hanger details
  • Openings pre-planned for stairs and chases
  • Production-grade consistency across builds
Engineered Floor Systems That Improve Project ROI

Green-R-Panel’s engineered I-joist and open-web floor systems reduce labor, speed installation, and deliver consistent performance. Helping developers shorten schedules, lower carrying costs, and improve return predictability across multi-unit and light commercial projects.

Request your project consultation today

What’s Included in Every Floor Package

Each Green-R-Panel floor system is a complete, ready-to-go solution—built for speed, accuracy, and repeatability across multiple units or lots.
Engineered I-Joists or Open Web Trusses
  • Precision-cut to length
  • Code-rated for live/dead loads
  • Low deflection for quiet, stiff floors
Engineered Support Beams (LVL or GLULAM)
  • Flush or dropped based on layout
  • Sized and placed per your plans
Rim Joists (For I-Joist Systems)
  • Structural perimeter stability
  • Ensures square, level wall alignment
All Necessary Hardware
  • Simpson strong-tie connectors
  • Joist hangers, beam hardware, and fasteners
Access Openings (Stairs, HVAC, Crawl)
  • Pre-engineered per plan
  • Speeds framing and mechanical install

Start Your Next Build With a Proven Advantage

Download the Multi-Unit Project Acceleration Guide and discover how multi-family and light commercial developers are cutting weeks off construction schedules while improving framing precision, coordination, and cost predictability across every project.

Enter your email to access the guide and get clear, step-by-step direction for integrating panelized shell framing into your next development.

×

Why Multifamily Developers Trust Green-R-Panel

Reliable Structural Systems at Scale

Our engineered floor systems eliminate site variability—giving your team repeatable success across multiple homes or phases.

Built in a Controlled Environment

No weather delays, lumber defects, or cutting errors. Every joist or truss is manufactured to your approved specs with layout-ready labeling.

Framing Teams Love the Simplicity

Everything arrives prefabricated, labeled, and matched to the plan—allowing you to keep crews on task and off ladders longer.

Mechanical Trades Work Faster

Plumbing, ductwork, and electrical installations go smoother with wide-open service paths and fewer on-site modifications.

Consistent Quality = Fewer Issues Down the Line

A strong subfloor pays off through every phase—from drywall to closing day—helping your buyers feel the difference and reducing warranty claims.

Built for Developers Who Value Efficiency

Green-R-Panel floor systems are ideal for multifamily developers looking to:

  • Improve schedule certainty across multiple builds
  • Standardize framing quality across a subdivision
  • Reduce MEP installation headaches
  • Hit performance benchmarks without overbuilding
  • Integrate seamlessly with prefab wall and roof kits

Need help with value-engineering floor options for a model lineup? Our team can support multi-plan developments and assist with scalable design strategies.

Simple 5-step process

1. Development Briefing
Contact us by phone, email, or through our online form to outline your project scope, unit count, and completion targets. We’ll show you how our system helps compress construction schedules and control costs.
2. Plan Review

Send in your architectural drawings for evaluation. Our estimating department will prepare a clear, itemized quote for your prefabricated framing package.

3. Quote Approval
Examine the detailed proposal covering all components. Discuss revisions, confirm specifications, and initiate your order with a 10% deposit.
4. Drafting & Fabrication
Our team produces AutoCAD component layouts and drawings for every building in the development. Only after your approval do we begin manufacturing through our certified production facilities.
5. Coordinated Delivery
We arrange shipments from strategically located factories to your jobsite, with flat-packed, labeled, and build-order-sequenced bundles for rapid assembly. Developer support remains available throughout the build.

Green-R-Panel – Scalable Structural Framing Systems for Multifamily Developers

From single-family builds to small infill developments, Green-R-Panel delivers engineered framing systems that combine structural precision with installation speed. Included in Every Package:

Building several homes? We’ll help standardize your framing process across lots, units, or models for smoother execution at scale.

Green-R-Panel is trusted by developers across North America who want to keep framing costs predictable, manage labor more efficiently, and deliver homes their buyers will love—from the subfloor up.

Talk to a developer specialist → 1-800-871-7089
Email us → [email protected]
Get a free bulk project quote → Free Quote